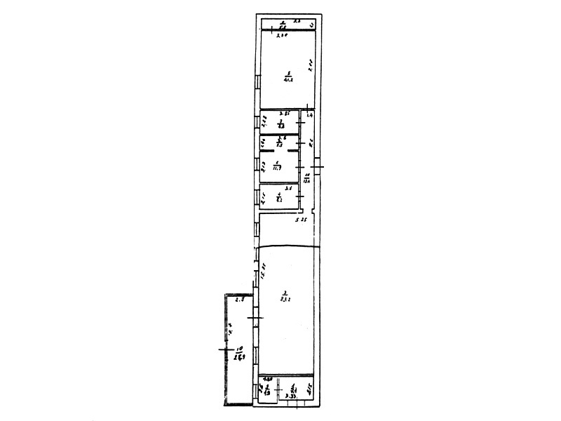
Commercial - Yerevan/Arabkir/Komitas Avenue
-
Commercial area (sq/m): 190.00
-
Building Type: Stone
-
Condition: Major overhaul
-
Commercial property type: Space
-
Space Type: Universal
-
Ceiling height (m): 2.65
-
Entry type: Semibasement
Mortgage calculator
Gallery
Amenities
- First line
- Transport availability
- High people flow
- Developed infrastructure
















